Продуманный проект одноэтажного дома 136 м². Фундамент уже залит. Планировка на оценку

Добрый день, уважаемые гости!

Безусловно, каждый хозяин во время проектирования своего будущего частного дома всегда ищет во всем рациональное зерно, пытается вложить в дом максимальную практичность и комфорт, ведь ему и его семье дальше жить в этом доме, а не проектировщикам и строителям.

Ко мне обратился читатель моего блога с просьбой опубликовать проект его будущего дома и услышать мнения и критику как специалистов, так и уже счастливых обладателей загородных домов в части планировки, которая еще может быть изменена. Возможно, вы смогли бы что-либо посоветовать и добавить.

Итак, сегодня, я хотел бы представить на мой взгляд очень удобный и просторный одноэтажный домик с внешними размерами 11х15 и общей площадью 136 кв.м.

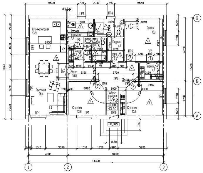
Планировка:

Продуманный проект одноэтажного дома 136 м². Фундамент уже залит. Планировка на оценку0

Цели, которые закладывались при проектировании:

  1. Дом максимально правильной формы, без дополнительных внутренних и внешних углов.
  2. Большая совмещенная кухня-гостиная.
  3. Три жилые комнаты (одна спальня для супругов и две детские)
  4. Отдельный санузел в спальне хозяев.
  5. Отдельная гардеробная в спальне хозяев.
  6. Большие прихожая и коридор.
  7. Отсутствие общих стен между спальнями.
  8. Большое количество мест хранения.
  9. Максимально компактное расположение влажных зон и газового оборудования.

Фасады дома:

Продуманный проект одноэтажного дома 136 м². Фундамент уже залит. Планировка на оценку1Продуманный проект одноэтажного дома 136 м². Фундамент уже залит. Планировка на оценку2Продуманный проект одноэтажного дома 136 м². Фундамент уже залит. Планировка на оценку3

На текущий момент, уже выполнен фундамент и под частью дома сделано подвальное помещение 21 кв.м., в которое ведет лестница из бойлерной.

Возведение дома планируется делать из газоблока и облицовочного кирпича с вент.зазором.

Участок, на котором выполняется строительство — стандартный, площадью 6 соток и размерами 20х30 м., по фасаду — 20 м. Газ, электроэнергия и водопровод будут подводиться от муниципалитета, а в качестве канализации — индивидуальный септик.

Продуманный проект одноэтажного дома 136 м². Фундамент уже залит. Планировка на оценку4

Участок является крайним с единственным соседом, именно поэтому принято решение сделать окна, выходящие из жилых комнат только по 3-м сторонам дома. С Востока и с Юга вид на поле и лес.

Дополнительные постройки пока не планируются кроме небольшого хозяйственного помещения для хранения садового инвентаря, а в качестве озеленения преимущественно газон!

Назначение помещений и размещение мебели:

Продуманный проект одноэтажного дома 136 м². Фундамент уже залит. Планировка на оценку5

Вот такой домик с удобной и комфортной планировкой. Со своей стороны, я бы еще предусмотрел в гостиной печь-камин, всё же холодными зимними вечерами приятно слышать треск дров и ощущать излучаемое тепло от настоящего огня и что немаловажно — такой агрегат будет являться дублирующим источником тепла на крайний случай.

Буду рад Вашим комментариям, Вашей критике и пожеланиям.

Спасибо!

Оставить комментарий

Ваш адрес email не будет опубликован. Обязательные поля помечены *

Этот сайт использует Akismet для борьбы со спамом. Узнайте, как обрабатываются ваши данные комментариев.

Что будем искать? Например,Человек